News
Event
Concept
Company
Contact





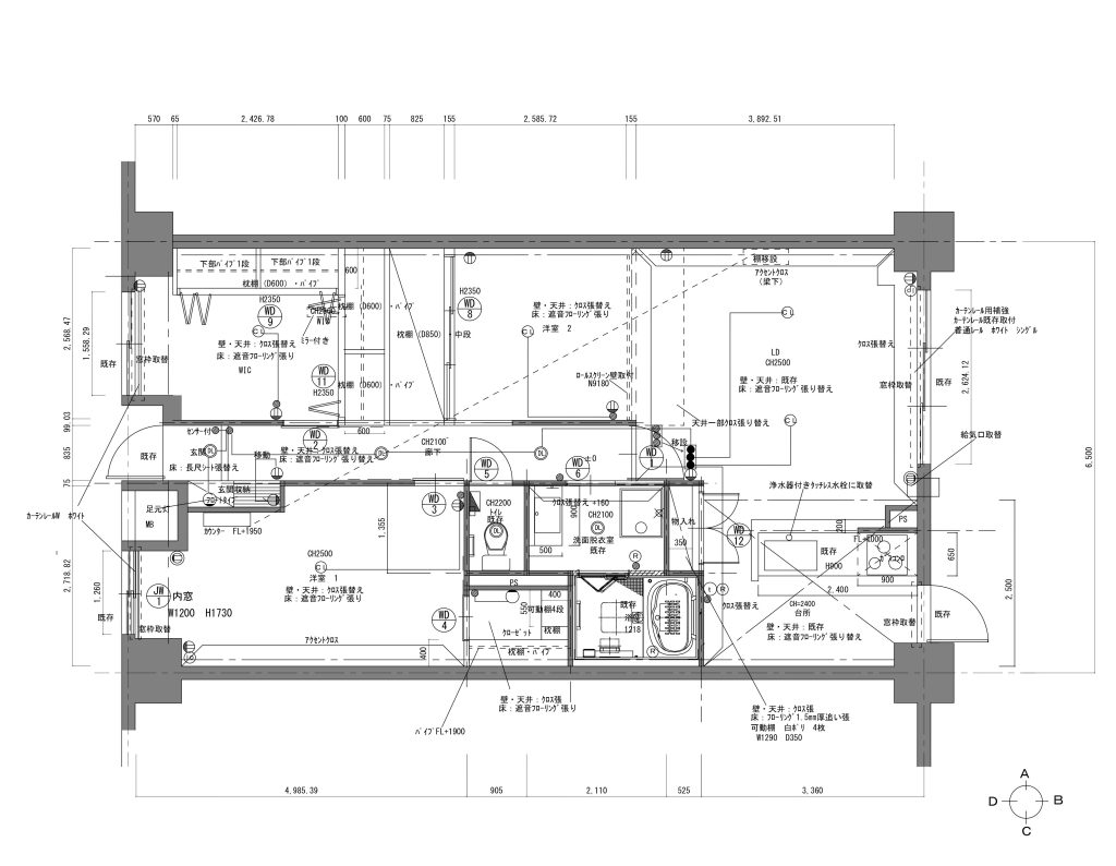
2人の生活になり、1SLDKに改装されました。
▼Before

▼After


Before…


Before…


Before…


Before…


Before…


Before…
