戸建てリノベーション/安佐北区M様邸

体に優しい断熱リノベをご希望で問合せ頂きました。

アルミ単体ガラスサッシを、ペア樹脂サッシに全窓取替。

壁紙はおがファーザー、床・階段は桧の無垢。

とことん拘られました。

間取り1階

Before…

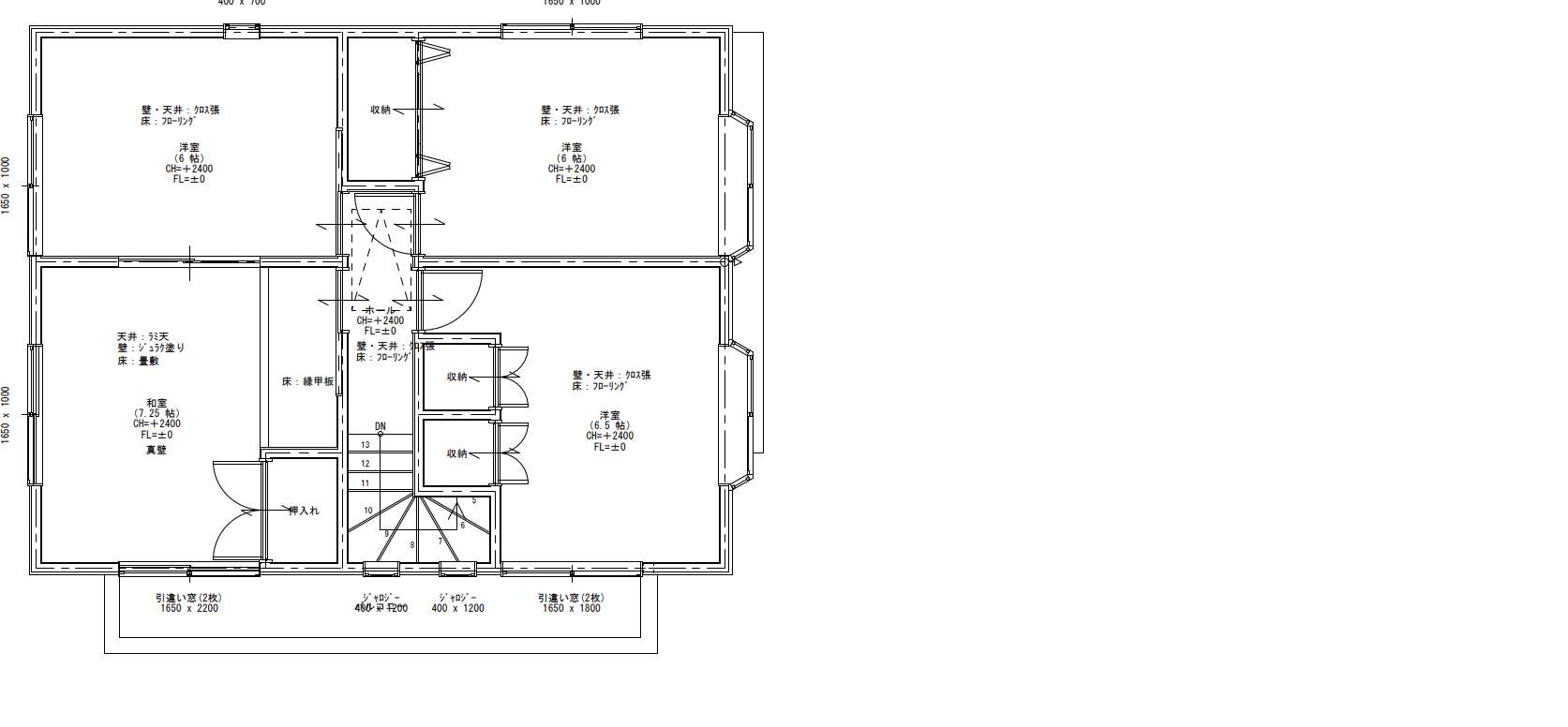
間取り2階

Before…

玄関

Before…

キッチン

Before…

和室

Before…

階段

Before…

洋室

Before…

list
リフォーム
お問い合わせ